Bilocale in vendita

Roma, Via Buonconvento - Trullo
€ 155.000
2 locali 2 locali
55 Mq 55 Mq
1 bagno 1 bagno

Bilocale in vendita

Roma, Via Buonconvento - Trullo

Descrizione annuncio

Nel cuore del Trullo, precisamente in Via Buonconvento, proponiamo in vendita un bilocale al primo piano di una palazzina in cortina, senza ascensore, situato in una traversa tranquilla ma vicinissima a tutti i principali servizi del quartiere.

L'appartamento, da ristrutturare risulta essere perfetto per chi desidera personalizzare ogni ambiente secondo i propri gusti ed esigenze. Si distingue per la sua luminosità grazie all' esposizione sud-est e ovest e ai due balconi che lo rendono arioso e vivibile.

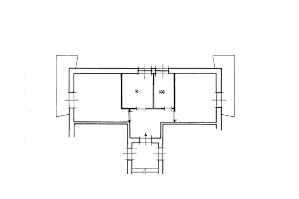
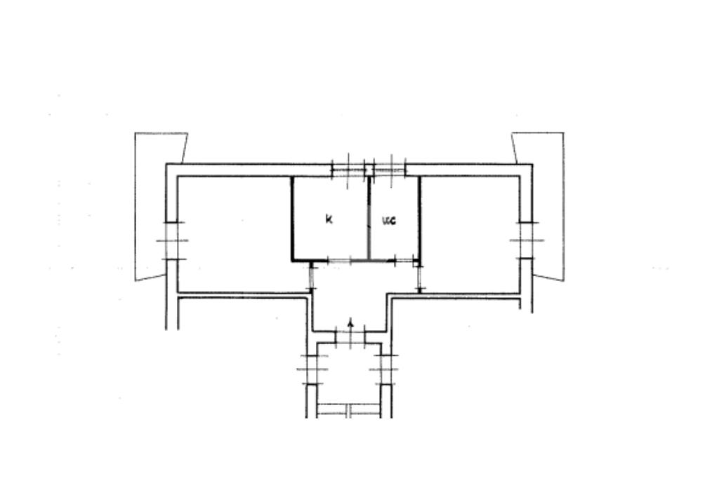
Gli spazi interni sono ben distribuiti: l'ingresso apre su un comodo salone, la cucina è abitabile, la camera da letto matrimoniale è ampia e il bagno, finestrato, completa la proprietà.

Una soluzione ideale per chi cerca un immobile personalizzabile in una zona servita e ben collegata. Perfetto anche come investimento.

Offriamo servizi di valutazione gratuita e consulenze finanziarie con il nostro partner Kiron.

Per maggiori informazioni passate a trovarci nel nostro ufficio, ci troviamo in Via Portuense 722F

Le informazioni contenute nel presente annuncio sono fornite a scopo puramente informativo e non costituiscono elemento contrattuale.

Mostra tutto

Nelle vicinanze

Trasporto pubblico Trasporto pubblico
EUR Magliana
EUR Magliana
2,5 Km
Trasporto pubblico
1,4 Km
Trullo/Vigna Consorti
Trullo/Vigna Consorti
160 m
Trullo/Lamporecchio
Trullo/Lamporecchio
200 m
Magliana
Magliana
1,5 Km
Ricariche auto elettriche Ricariche auto elettriche
Supermercato PIM Newton
1,2 Km
Europa Car Point S.r.l. | EnelX
1,9 Km
Garage Berardo | EnelX
2,0 Km
Roma Val Fiorita | EnelX Fast
2,6 Km
Roma Val Fiorita | EnelX
2,6 Km
Scuole Scuole
Scuola primaria e dell'infanzia "ARVALIA"
410 m
Istituto sacri cuori di Gesù e Maria
520 m
Scuola primaria "Carlo Collodi"
540 m
Scuola primaria e dell'infanzia "Corviale"
800 m
Scuola secondaria di primo grado "Antonio Gramsci"
810 m
Farmacia Farmacia
Farmacia dott. Torelli
360 m
Farmacia Gina Mucelli
550 m
Farmacia Bianchini
560 m
Farmacia Dr. Cianci
660 m
Parafarmacia doc*Frattini
1,2 Km
Ospedali Ospedali
European Hospital
700 m
Policlinico Luigi di Liegro
1,2 Km
Villa Sandra
1,2 Km
Ospedale Israelitico
1,4 Km
Ospedale Carlo Forlanini
2,5 Km
Supermercati Supermercati
Conad Superstore
290 m
De Carolis alimentari
320 m
Todis
390 m
iN’s mercato
1,1 Km
doc*Frattini
1,2 Km
Negozi Negozi
Mini Market
210 m
Bambi abbigliamento per bambini
370 m
Alimentari Rossi
460 m
Negozi
650 m
La casa del pane
650 m
Bar Bar
Bistrot 139
980 m
Mario Tornatora
1,1 Km
39 Bar
1,3 Km
Novezero
1,3 Km
Bar
1,3 Km
Ristoranti Ristoranti
Pizzeria rosticceria
260 m
Ciclostazione Frattini
1,2 Km
Ai petrelli
1,3 Km
White Bakery
1,4 Km
Neko
1,7 Km
Mostra tutto

Caratteristiche

Rif.:
61127006
Piano:
1 di 2 (Piano basso)
Balconi:
2
Camere da letto:
1
Arredamento:
Parziale
Condizionamento:
Autonomo
Mostra tutto
Prezzo Prezzo
€ 155.000
Rata mutuo Rata mutuo
€ 732 / mese
Spese annue Spese annue
€ 840
Proponi il tuo prezzoProponi il tuo prezzo

Classe Energetica

G
G
G
G
G
G
G
G
G
EP globale non rinnovabile:
3.50 kW h/m² anno
EP globale rinnovabile:
3.50 kW h/m² anno
EP invernale del fabbricato:
EP estiva del fabbricato:
Anno di costruzione:
1960
Riscaldamento:
Autonomo
Tipo impianto:
A radiatori
Tipo alimentazione:
Metano

Ti interessa visionare l'immobile?

Fissa un appuntamento  Fissa un appuntamento

Richiedi informazioni

Clicca su Leggi per aprire l'informativa
* Questi campi sono obbligatori

Calcola il tuo mutuo

Semplice e senza impegno
Anticipo

( % )
Mutuo

( % )

pochi semplici passi

inserisci i tuoi dati
Questionario completato
Grazie per aver richiesto un appuntamento senza impegno con un nostro Consulente del Credito e Assicurativo.

Hai inserito correttamente tutti i dati necessari e a breve riceverai una e-mail con un link da convalidare per inviare i tuoi dati.
Affiliato
Studio Casetta Mattei Portuense Srl
Via Portuense, 722/F 00148 Roma (RM)

Il nostro staff


  • Federica Bolzan
    Coordinatrice

  • Luca Celli
    Collaboratore

  • Andrea Kondrashov
    Collaboratore

  • Federica Mercanti
    Coordinatrice

  • Sara Mercanti
    Responsabile
Via Portuense, 722/F 00148 Roma (RM)
Zona: Portuense-Bravetta
Mostra su mappa
Orari: Lunedì - Venerdì : 09:00-20:00; Sabato: 09:00-18:00; Domenica: chiuso
Affiliato
Studio Casetta Mattei Portuense Srl
Via Portuense, 722/F 00148 Roma (RM)

2025 Tecnocasa Franchising S.p.A. - P. IVA 08365160152 - Via Monte Bianco 60/A 20089 Rozzano (MI). Ogni agenzia ha un proprio titolare ed è autonoma. Privacy policy | Policy utilizzo | Cookie policy