Bilocale in vendita

Roma, Via degli Adimari - Casetta Mattei
€ 215.000
Prezzo aggiornato
2 locali 2 locali
66 Mq 66 Mq
1 bagno 1 bagno

Bilocale in vendita

Roma, Via degli Adimari - Casetta Mattei

Descrizione annuncio

venduto- In Via degli Adimari, una tranquilla traversa di Casetta Mattei, proponiamo in vendita un delizioso bilocale con terrazzo che rappresenta la sintesi perfetta tra comfort, privacy e praticità. La posizione è invidiabile: siamo a due passi da tutti i servizi, ma in una via riservata e silenziosa, lontana dal caos della strada principale.

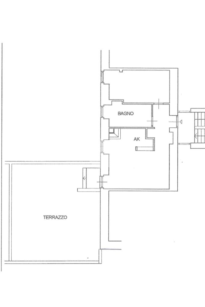
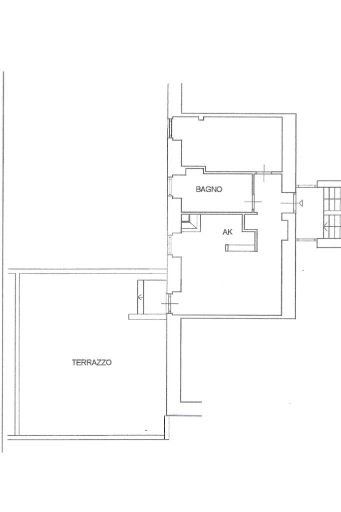
L’immobile, posto al primo piano di una palazzina senza ascensore, si presenta in buono stato interno e si distingue per un terrazzo spettacolare di circa 53 mq, un vero e proprio valore aggiunto. Uno spazio esterno unico nel suo genere, ideale per chi sogna cene all’aperto, aperitivi con amici o momenti di relax immersi nel verde.

Internamente, l'appartamento si apre su un ingresso accogliente, salone con cucina a vista, una camera matrimoniale e un bagno finestrato con doppio lavabo. L’affaccio sul verde regala tranquillità e una gradevole sensazione di respiro.

A completare la proprietà troviamo una comoda cantina, infissi in doppio vetro, porta blindata, soppalco, armadio a muro e una caldaia di ultima generazione, elementi che garantiscono funzionalità e risparmio energetico.

Una soluzione ideale per single, giovani coppie o anche come investimento. Un bilocale che conquista per il suo equilibrio tra spazi interni e vita all’aperto.

Offriamo servizi di valutazione gratuita e consulenze finanziarie con il nostro partner Kiron.

Per maggiori informazioni passate a trovarci nel nostro ufficio, ci troviamo in Via Portuense 722F

Le informazioni contenute nel presente annuncio sono fornite a scopo puramente informativo e non costituiscono elemento contrattuale.

Mostra tutto

Nelle vicinanze

Trasporto pubblico Trasporto pubblico
Trasporto pubblico
2,1 Km
Gianicolense/Ravizza
Gianicolense/Ravizza
3,0 Km
Casetta Mattei/Portuense
Casetta Mattei/Portuense
160 m
Portuense/Casetta Mattei
Portuense/Casetta Mattei
170 m
Magliana
Magliana
2,1 Km
Ricariche auto elettriche Ricariche auto elettriche
Supermercato PIM Newton
1,4 Km
EnelX EVA+ Distributore IP Matic La Pisana
2,3 Km
Europa Car Point S.r.l. | EnelX
2,6 Km
Garage Berardo | EnelX
3,0 Km
Scuole Scuole
Scuola primaria e dell'infanzia "Corviale"
310 m
Scuole
690 m
Scuola Gramsci (succursale)
740 m
Istituto Istruzione Superiore “Via dei Papareschi”
760 m
Scuola secondaria di primo grado "Antonio Gramsci"
870 m
Farmacia Farmacia
Parafarmacia Conad
680 m
Farmacia Bianchini
710 m
Farmacia Gina Mucelli
1,1 Km
Farmacia Di Leone
1,1 Km
Farmacia dott. Torelli
1,4 Km
Ospedali Ospedali
Policlinico Luigi di Liegro
170 m
Villa Sandra
380 m
European Hospital
940 m
Ospedale Israelitico
1,9 Km
Ospedale Carlo Forlanini
2,7 Km
Supermercati Supermercati
Il Castoro
270 m
iN’s mercato
320 m
Conad
670 m
Penny
870 m
Conad Superstore
910 m
Negozi Negozi
Il Giardino del Pane
230 m
Negozi
670 m
Mini Market
1,2 Km
Bambi abbigliamento per bambini
1,4 Km
Alimentari Rossi
1,5 Km
Bar Bar
Mario Tornatora
270 m
Novezero
1,4 Km
Bar
1,8 Km
39 Bar
1,8 Km
Bistrot 139
1,9 Km
Ristoranti Ristoranti
Pizzeria rosticceria
1,3 Km
Panorama 2001
1,3 Km
White Bakery
1,6 Km
Locanda dei Massimi
1,6 Km
Neko
1,8 Km
Mostra tutto

Caratteristiche

Rif.:
61128972
Piano:
1 di 4 (Piano basso)
Terrazzi:
1
Camere da letto:
1
Arredamento:
Parziale
Condizionamento:
Autonomo
Mostra tutto
Prezzo Prezzo
€ 215.000
Rata mutuo Rata mutuo
€ 1.015 / mese
Spese annue Spese annue
€ 756
Proponi il tuo prezzoProponi il tuo prezzo

Classe Energetica

G
G
G
G
G
G
G
G
G
EP globale non rinnovabile:
3.50 kW h/m² anno
EP globale rinnovabile:
3.50 kW h/m² anno
EP invernale del fabbricato:
EP estiva del fabbricato:
Anno di costruzione:
1960
Riscaldamento:
Autonomo
Tipo impianto:
A radiatori
Tipo alimentazione:
Metano

Prezzo ridotto di €1 (5%%)

Ti interessa visionare l'immobile?

Fissa un appuntamento  Fissa un appuntamento

Richiedi informazioni

Clicca su Leggi per aprire l'informativa
* Questi campi sono obbligatori

Calcola il tuo mutuo

Semplice e senza impegno
Anticipo

( % )
Mutuo

( % )

pochi semplici passi

inserisci i tuoi dati
Questionario completato
Grazie per aver richiesto un appuntamento senza impegno con un nostro Consulente del Credito e Assicurativo.

Hai inserito correttamente tutti i dati necessari e a breve riceverai una e-mail con un link da convalidare per inviare i tuoi dati.
Affiliato
Studio Casetta Mattei Portuense Srl
Via Portuense, 722/F 00148 Roma (RM)

Il nostro staff


  • Federica Bolzan
    Coordinatrice

  • Luca Celli
    Collaboratore

  • Andrea Kondrashov
    Collaboratore

  • Federica Mercanti
    Coordinatrice

  • Sara Mercanti
    Responsabile
Via Portuense, 722/F 00148 Roma (RM)
Zona: Portuense-Bravetta
Mostra su mappa
Orari: Lunedì - Venerdì : 09:00-20:00; Sabato: 09:00-18:00; Domenica: chiuso
Affiliato
Studio Casetta Mattei Portuense Srl
Via Portuense, 722/F 00148 Roma (RM)

2025 Tecnocasa Franchising S.p.A. - P. IVA 08365160152 - Via Monte Bianco 60/A 20089 Rozzano (MI). Ogni agenzia ha un proprio titolare ed è autonoma. Privacy policy | Policy utilizzo | Cookie policy